
自然與建筑的關系,是建筑設計中的經典議題,同樣也是西扎在工作中經常要處理的問題。
文中通過兩座泳池建筑的對比,呈現出西扎對“自然-建筑”,這個包含一組對立面的議題的處理。
在他的作品中這組對立面彼此融合,呈現出復雜卻明晰的秩序。
盡管選擇兩個特定建筑來闡釋這個問題,但要注意的是,每個建筑中也包含了其他更豐富、更多面的內容,因為建筑師在每個項目中都回應和解決了不同層面的現狀問題。
自然-建筑:
確立界限與突破界限
1 確立界限
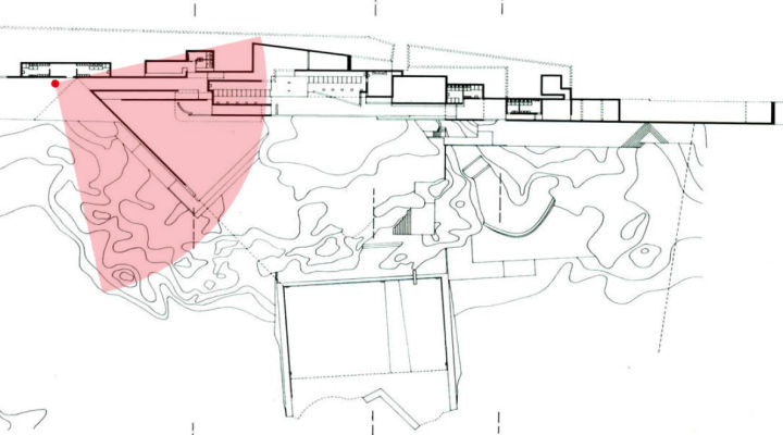
萊薩達帕爾梅拉游泳池,1961~1966
POOLS IN LE?A DA PALMEIRA

草圖與鳥瞰衛星圖 El Croquis建筑素描
在談到萊薩達帕爾梅拉游泳池和其他建筑時,西扎提到過,保持自然與建筑之間的界線是重要的,并且聲明,保持這種差異性是作品概念的主旨。
萊薩游泳池的所在之處,是大西洋海岸與城市的交界。巖石在這里圍裹成一個小型的泄湖,建筑旨在優化這些天然條件:“我必須最大程度地利用這些巖石,只在絕對必要時增加墻體,完成水域的圍合,目的是在有機的景象中構造出幾何圖形?!?這就使幾何變得非常必要(“建筑意味著幾何化”),因為建筑遵從于景觀的邏輯,雖然它們之間的關系并不是單純的模仿:建筑由景觀轉化而來,憑借幾何形態而清晰地從景觀中凸顯。然而,在主泳池的設計中,靠近海洋的邊界保留了它的自然狀態,來試圖模糊兩種水體的界線。

平面圖 El Croquis建筑素描NO.168/169
這片區域本身已經有了人工構筑的邊界:一面低矮的粉刷石頭墻,圍繞著巖石和砂礫組成的海灘,確立了海灘與利貝爾達德大道的高差。西扎決定沿著這面墻設置泳池,強調其作為界線的本質。

從北側望向海面 El Croquis建筑素描
但這里有一個限制,也是他十分重視的、作為項目催化劑的現狀條件之一:進入場地的空間序列缺少必要的縱深,來完成城市與自然環境兩個世界間的平緩過渡。西扎這樣解釋到:“同時,這對于解決入口問題也至關重要。進深很淺,因為道路幾乎貼著海岸線……所以怎么進入呢?解決方法就是設計“之”字形的路徑,以產生一種矛盾的深度感,對于定義場地的入口有決定性意義。

鳥瞰 Google地圖
在平面圖上,最初為解決進深不夠的局限所做的決定,得出的幾何結果是一系列折疊再折疊的綿長線條(墻體)引導出路徑?!罢且驗檫@片區域的進深很淺,才使得平行的通道賦予這個建筑縱向的延伸”。新建墻體和欄桿平行于路徑邊緣,“強化”了這一邊界,同時它們的曲折蜿蜒在空間和時間上都擴展了到達泳池的路線序列。

建筑的路線序列 El Croquis建筑素描
盡管這是西扎最早期的作品,除基于地形的設計決斷外,項目中活躍的其他原生建筑因素也都經過他熟練精湛的處理:在序列的移動之中,自然光線漸變,視覺景象得以控制。沿著墻體的路徑,西扎所創造的不斷變化的光線和景觀,前人已有諸多描述。這是一串連續的感知體驗:步道上面對的海洋廣闊視野,隨著坡道下行而漸漸消失,進入更衣室的黑暗空間,接著露天長墻圍合的區域浮現;走過這片區域,盡端是一處有屋頂的門廊,繼續穿行矮墻圍合的空間,這一回矮墻遮蔽了道路卻擋不住視野,出到海灘的開闊地帶,風景一覽無余,最后循著巖石、混凝土平臺之間的路徑,拾階步向游泳池。
連續的感知體驗:

入口 El Croquis建筑素描

更衣室 El Croquis建筑素描

露天長墻區域看向“門廊”-El Croquis建筑素描

回看“門廊” El Croquis建筑素描

從南側望向海面 El Croquis建筑素描
然而,如果我們在坡道的末端朝著相反的方向前行——往右而不是往左——那我們將會遇到另一面墻,偏離其他墻體45°。

從入口坡道走向45°的圍墻,及其與泳池的對位關系 Google地圖
這是西扎用來加大空間體驗深度的另一個幾何學辦法:利用緊靠咖啡廳露臺的這面墻來制造明顯的對角線。這個三角形的平臺通過一系列不明顯的對角線(互相平行且與偏轉的墻體垂直)逐漸擴展,只在某些特定的節點具象化為邊緣和臺階。于是,連續的不明顯三角形的頂點將游覽者的路線和視角首先聚焦在一個角落,最終聚焦在主泳池靠海的邊緣。而我們的視角并沒有就此停止。對角線墻體不僅將我們的視線吸引到最后的頂點,并且延伸得更遠,直到地平線:“對角線向著遠處的地平線展開:這使得空間線條變得清晰,更引發了對于空間深度的全面感知?!?/span>


看向泳池和大西洋 El Croquis建筑素描NO.168/169
2 穿越界限
里貝拉·薩拉羅綜合體育館,2003~2006
POOLS IN THE RIBERA SERRALLO SPORTS COMPLEX
里貝拉·薩拉羅綜合體育館位于巴塞羅那附近的科爾內利亞·徳·略夫雷加特,在城市外圍、一處介于城鎮和高速公路之間的尷尬之地。

草圖與鳥瞰衛星圖 El Croquis建筑素描
體育館包括兩個主要體量,多功能場館和水上運動區,還有一個長條建筑作為通往這些設施的入口。多功能場館的平面是一邊有稍小弧線的近似矩形。
水上運動區由室外和室內的泳池組成。室內泳池在一棟橢圓形平面的建筑中,穹頂屋面上諸多圓形的天窗將光線引入。在這個強有力的幾何形體里,一部分泳池是供比賽使用的矩形區域,而余下的則采用自由曲線輪廓。室外泳池也同樣是自由輪廓。在這片沒有自然環境包圍的區域中(只有遠山的輪廓),西扎為“水”這一元素創造出特殊的“自然”形式,與建筑的人工幾何形狀形成對比。在這座建筑綜合體中,泳池的自由形式隱喻了此地缺失的自然。

里貝拉·薩拉羅綜合體育館平面圖 El Croquis建筑素描NO.140
連續的邊界線在兩個泳池的連接處收縮為一個狹小區域,穿透了橢圓形建筑的圍墻—這個部分的墻體使用了玻璃。這是水上運動區的建筑主題,在一定程度上也是整座建筑群的主題。這個主題明顯關乎室內外的邊界,以及跨越這條邊界的方式,即通過不規則卻連續的輪廓線構成變形蟲似的形式,然而并不喪失它有力的幾何特征。我們可以想象一下穿過這條界限的感受,從室內游到室外或者從室外游到室內。

水上運動區 El Croquis建筑素描NO.140

室內與室外間的邊界 El Croquis建筑素描NO.140
這個平面圖奇妙地在室內與室外、封閉與開放、有頂與露天的兩種環境之間取得了勢均力敵的平衡。這種平衡尤為困難的地方在于,室外泳池的形態必須與室內泳池以及橢圓形平面區域的形態相平衡。因此,室外泳池的大小介于后兩者之間。它的形狀接近橢圓形,但為了配合同樣彎曲的室內泳池而彎曲。外墻及其楔形頂棚在幾何上都是圓形的,在臨近道路的一側包裹著水上運動區,是這片區域各個部分的整合要素。

室內外泳池的形狀 El Croquis建筑素描
在一張拍攝于場館的墻面的開口部分、角度幾乎與玻璃幕墻相切的室外照片中,由于玻璃上共存的透明和反射效果,墻體兩側形式的近似對稱與玻璃中鏡面反射出的外部元素的完全對稱,重疊在同一張照片上,凸顯了邊界既是分割也是聯系的復雜特性。

場館玻璃幕墻 El Croquis建筑素描NO.140

從室外看向水上運動區 El Croquis建筑素描NO.140
*本文節選自El Croquis建筑素描 NO.168/169 《大師的啟示》
作者:胡安·安東尼奧·科爾特斯 Juan Antonio Cortés







